3071 Dumont Way, Regina

  • Bedrooms: 6
  • Bathrooms: 4
  • Living area: 1753 square feet
  • Type: Residential
  • Added: 1 month ago
  • Updated: 1 month ago
  • Last Checked: 55 minutes ago
  • Listed by: Royal LePage Next Level

Listing description
This House at 3071 Dumont Way Regina, SK with the MLS Number sk022255 which includes 6 beds, 4 baths and approximately 1753 sq.ft. of living area listed on the Regina market by Vipul Rabari - Royal LePage Next Level at $689,900 1 month ago.

Welcome to 3071 Dumont Way, a stunning, brand-new 1,753 sq ft two-storey home in the desirable neighborhood of The Towns. The bright, open-concept main floor is enhanced by soaring 9ft ceilings, creating an airy and spacious feel throughout the kitchen with its large island, the dedicated dining room, inviting living room, and the highly sought-after main-floor bedroom and 3-piece full bathroom. Upstairs, the private second level is home to a spacious primary bedroom with a 4-piece ensuite and walk-in closet, two additional bedrooms, another full bathroom, a versatile bonus room, and a dedicated laundry room. A major highlight is the legal basement suite, providing an excellent mortgage helper with its own separate entrance, a full second kitchen, a comfortable living room, two additional bedrooms, and a 3-piece bathroom. This exceptional property offers a total of 6 bedrooms and 4 bathrooms, plus the comfort of central air and a natural gas BBQ hookup. With a double attached, heated, and fully insulated garage and an HRV, this home delivers the perfect blend of style, comfort, and investment potential. Kitchen appliances and laundry for both units are included in the purchase price. A showing of a similar kind of home can be arranged. Don’t miss this one — book your viewing today! (id:1945)
Powered by REALTOR.ca
This listing content provided by REALTOR.ca has been licensed by REALTOR®
members of The Canadian Real Estate Association
Property Details Key information about 3071 Dumont Way
  • Cooling: Central air conditioning
  • Heating:
    • Baseboard heaters
    • Forced air
    • Electric
    • Natural gas
  • Stories: 2
  • Year Built: 2025
  • Structure Type: House
  • Architectural Style: 2 Level
Interior Features Discover the interior design and amenities
  • Basement:
    • Finished
    • Full
  • Appliances:
    • Washer
    • Refrigerator
    • Dishwasher
    • Stove
    • Dryer
    • Microwave
    • Garage door opener remote(s)
  • Living Area: 1753
  • Bedrooms Total: 6
Exterior & Lot Features Learn about the exterior and lot specifics of 3071 Dumont Way
  • Lot Features:
    • Double width or more driveway
    • Sump Pump
  • Lot Size Units: square feet
  • Parking Features:
    • Attached Garage
    • Parking Space(s)
    • Heated Garage
  • Lot Size Dimensions: 3560.00
Location & Community Understand the neighborhood and community
  • Common Interest: Freehold
Additional Features Explore extra features and benefits
  • List A O R: Saskatchewan
  • List A O R Key: 27
  • Geocode Manual Y N: 1
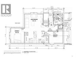
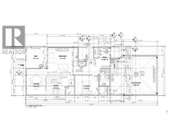
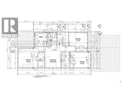
Room Dimensions
Type Level Dimensions
Foyer Main level x
Kitchen Main level 8.4 x 12.1
Living room Main level 13.8 x 14
Dining room Main level 12 x 10
Bedroom Main level 9 x 11
3pc Bathroom Main level x
Primary Bedroom Second level 12 x 12
4pc Ensuite bath Second level x
Bedroom Second level 9.8 x 11.4
Bedroom Second level 9.8 x 10.4
4pc Bathroom Second level x
Bonus Room Second level 13 x 10
Laundry room Second level x
Kitchen Basement 9 x 7.2
Living room Basement 15.4 x 13.4
Bedroom Basement 10.8 x 9.8
Bedroom Basement 8.4 x 10
3pc Bathroom Basement x
Laundry room Basement x

Nearby Listings Stat Estimated price and comparable properties near 3071 Dumont Way

Active listings
4
Min Price
$615,000
Max Price
$698,900
Avg Price
$670,450
Days on Market
54 days
Sold listings
2
Min Sold Price
$610,000
Max Sold Price
$799,900
Avg Sold Price
$704,950
Days until Sold
37 days

Nearby Places Nearby schools and amenities around 3071 Dumont Way

Best Buy Canada (1.7 km)
2125 Prince of Wales Dr, Regina

Real Canadian Superstore (1.8 km)
Prince of Wales Dr, Regina

Rock Creek Tap & Grill (1.8 km)
3255 Quance St, Regina

Creekside Pub & Brewery (2.2 km)
3215 Eastgate Dr, Regina

Mongolie Grill (2 km)
3137 Quance St, Regina

East Side Mario's (2 km)
2060 Prince of Wales Dr, Regina

Tim Hortons and Cold Stone Creamery (2.1 km)
1960 Prince of Wales Dr, Regina

Applebee's (2.2 km)
2619 Quance St, Regina

Houston Pizza (2.3 km)
2815 Quance St, Regina

Angkor Southeast Asian Delight (2.3 km)
2567 Quance St, Regina

Boston Pizza (2.4 km)
2660 Quance St, Regina

Chuck E. Cheese's (2.5 km)
685 University Park Dr, Regina

Days Inn Regina (2 km)
3875 Eastgate Dr, Regina

Homesuites (2.2 km)
3841 Eastgate Dr, Regina

Holiday Inn Hotel & Suites Regina (2.2 km)
1800 Prince of Wales Dr, Regina

Country Inn & Suites By Carlson, Regina, SK (2.2 km)
3321 Eastgate Bay, Regina

Comfort inn (2.3 km)
3221 E Eastgate Dr, Regina

Super 8 Regina (2.6 km)
2730 Victoria Ave E, Trans Canada Hwy 1E & Fleet St, Regina

King's Acres Campground (2.1 km)
Eastgate Dr, Sherwood No. 159

Le Macaron (2.2 km)
2705 Quance St, Regina

Price History

November 3, 2025
by Royal LePage Next Level
$689,900
3071 Dumont Way
More Details?
Vipul Rabari
  • Vipul Rabari
  • Royal LePage Next Level
  • 306-201-8610