51 Eagle Point Drive, Windsor Junction

  • Bedrooms: 4
  • Bathrooms: 4
  • Living area: 3089 square feet
  • Type: Residential
  • Added: 6 months ago
  • Updated: 2 months ago
  • Last Checked: 19 hours ago
  • Listed by: Exit Realty Metro

Listing description
This House at 51 Eagle Point Drive Windsor Junction, NS with the MLS Number 202514505 which includes 4 beds, 4 baths and approximately 3089 sq.ft. of living area listed on the Windsor Junction market by Jeremy Cowan - Exit Realty Metro at $1,150,000 6 months ago.

Welcome to the exquisite lakefront property at 51 Eagle Point Drive, nestled on a peaceful cul-de-sac in Windsor Junction. This stunning home offers a unique blend of tranquility and convenience, with downtown Halifax and the international airport just minutes away, along with easy highway access.This remarkable residence, boasting approximately 3000 sq ft, has been meticulously cared for and epitomizes luxury, style, and comfort. From the moment you enter the foyer, you'll be captivated by the breathtaking views of Three Mile Lake, locally known as Keith's Lake. This impressive home features four bedrooms, four bathrooms, a two-car garage, and the added benefits of a ducted heat pump and municipal water, ensuring worry-free living for years to come. The bright and impeccably clean interior has been enhanced by significant updates in recent years and is sure to impress family and friends alike. The exceptionally functional layout is a standout feature, including a main floor primary bedroom complete with a well-appointed ensuite bathroom. Upstairs, you'll find generously sized bedrooms offering more spectacular lake vistas, a stylish five-piece bathroom, and a comfortable den perfect for movie nights or as a flexible living space. The lower level provides a walkout with abundant natural light and effortless access to the lake. The outdoor area is an entertainer's dream and a private haven. This property offers the best of all seasons with year-round enjoyment on the lake, whether it's swimming, paddling, or skating, making a separate cottage unnecessary. We invite you to call your preferred Realtor today to schedule a viewing and experience the allure of 51 Eagle Point Drive firsthand. (id:1945)
Powered by REALTOR.ca
This listing content provided by REALTOR.ca has been licensed by REALTOR®
members of The Canadian Real Estate Association
Property Details Key information about 51 Eagle Point Drive
  • Cooling:
    • Central air conditioning
    • Heat Pump
  • Stories: 2
  • Year Built: 1981
  • Structure Type: House
  • Exterior Features:
    • Stone
    • Wood siding
  • Foundation Details: Poured Concrete
  • Overall Style: Modern/Transitional
  • Levels: Multi-level
  • Layout: Open Concept Living/Dining
  • Natural Light: Ample
Interior Features Discover the interior design and amenities
  • Basement:
    • Finished
    • Full
    • Walk out
  • Flooring:
    • Hardwood Flooring
    • Large Format Tile Flooring
    • Patterned Tile Flooring
    • Area Rugs
  • Living Area: 3089
  • Bedrooms Total: 4
  • Bathrooms Partial: 2
  • Above Grade Finished Area: 3089
  • Above Grade Finished Area Units: square feet
  • Rooms:
    • Bedrooms
    • Bathrooms
    • Living Room
    • Dining Area
    • Kitchen
    • Foyer
    • Closets
  • Wall Finishes:
    • Light Blue/Grey Paint
    • White Paint
    • Patterned Tile Walls (Bathroom)
    • Subway Tile Backsplash (Kitchen)
  • Ceiling Details:
    • Flat Ceilings
    • Vaulted Ceilings
    • Sloped Ceilings
    • Balcony/Loft Overlook
  • Kitchen Features:
    • White Shaker Cabinets
    • Black Cabinet Hardware
    • White Countertops
    • Stainless Steel Dishwasher
    • Stainless Steel Sink
    • Large Window Over Sink
  • Bathroom Features:
    • Double Vanity
    • Under-mount Sinks
    • Modern Black Faucets
    • Modern Black Drawer Pulls
    • Large Round Mirror
    • Glass Shower Enclosure
  • Living Area Features: Fireplace with Mantel and Hearth
  • Lighting:
    • Chandeliers
    • Pendant Lights
    • Flush Mount Lights
  • Doors & Trim:
    • White Interior Doors
    • Bi-fold Closet Doors
    • White Trim
  • Staircase:
    • Wood Treads
    • White Risers
    • White Spindles
  • Windows:
    • Large Windows
    • Vertical Windows
Exterior & Lot Features Learn about the exterior and lot specifics of 51 Eagle Point Drive
  • View: Lake view
  • Lot Features:
    • Balcony
    • Level
    • Gazebo
  • Water Source: Municipal water
  • Lot Size Units: acres
  • Parking Features:
    • Attached Garage
    • Garage
    • Paved Yard
  • Lot Size Dimensions: 0.3489
  • Waterfront Features: Waterfront
  • Views: Views of Greenery/Outdoors
  • Access: French Doors
Location & Community Understand the neighborhood and community
  • Directions: Cobequid Road to Eagle Point Drive
  • Common Interest: Freehold
  • Community Features:
    • School Bus
    • Recreational Facilities
Utilities & Systems Review utilities and system installations
  • Sewer: Septic System
Tax & Legal Information Get tax and legal details applicable to 51 Eagle Point Drive
  • Parcel Number: 40015547
Additional Features Explore extra features and benefits
  • List A O R: NSAR
  • List A O R Key: 107
  • Living Area Source: Other
  • Bedrooms Above Grade: 4
  • Accessibility Features:
    • 32in min Doorways
    • 32in min Entry Doorways
    • Entry less than 3 steps
  • Other Notable Elements:
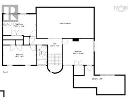
    Room Dimensions
    Type Level Dimensions
    Living room Main level 17.4x14.11
    Dining room Main level 18.7x13-jog
    Dining room Main level 10.9x14.10
    Foyer Main level 12.6x13.3
    Primary Bedroom Main level 21.10x15.2
    Ensuite (# pieces 2-6) Main level 8.4x9.5
    Kitchen Main level 9.8x10.0
    Storage Main level 13.2x5.6
    Bath (# pieces 1-6) Main level 4.0x5.8
    Foyer Main level 9.2x6
    Laundry room Main level 5.1x5.8
    Bedroom Second level 16.3x10.8
    Bedroom Second level 16.3x9.7
    Bath (# pieces 1-6) Second level 5.3x9.7
    Foyer Second level 16.0x7.10
    Storage Second level 24.11x10.7-jog
    Bedroom Second level 15.3x12.11
    Utility room Lower level 19.9x12.7
    Bath (# pieces 1-6) Lower level 4.1x6.6
    Foyer Lower level 8.6x13.3
    Recreational, Games room Lower level 27.0x14.2

    Nearby Listings Stat Estimated price and comparable properties near 51 Eagle Point Drive

    Active listings
    1
    Min Price
    $1,150,000
    Max Price
    $1,150,000
    Avg Price
    $1,150,000
    Days on Market
    198 days
    Sold listings
    0
    Min Sold Price
    $N/A
    Max Sold Price
    $N/A
    Avg Sold Price
    $N/A
    Days until Sold
    N/A days

    Nearby Places Nearby schools and amenities around 51 Eagle Point Drive

    Cavalier Drive Elem-JR High School (2.8 km)
    116 Cavalier Dr, Halifax, Subd. C

    Leslie Thomas Junior High School (3.7 km)
    100 Metropolitan Ave, Halifax, Subd. C

    Sackville High School (3.8 km)
    1 King Fisher Way, Lower Sackville

    Georges P. Vanier Junior High School (4.1 km)
    1410 Fall River Rd, Fall River

    Ash Lee Jefferson School (4.2 km)
    10 Lockview Rd, Waverley

    Tree house Cafe (3.3 km)
    22 Glendale Ave, Lower Sackville

    Tim Hortons (3.5 km)
    36 Verdi Dr, Bedford

    King Town Chinese Restaurant (3.4 km)
    225 Cobequid Rd, Halifax

    Jessy's Pizza (3.9 km)
    99 Cobequid Rd, Lower Sackville

    Sackville Sports Stadium (3.7 km)
    409 Glendale Dr, Lower Sackville

    Price History

    June 13, 2025
    by Exit Realty Metro
    $1,150,000
    51 Eagle Point Drive
    More Details?
    Jeremy Cowan
    • Jeremy Cowan
    • Exit Realty Metro
    • 902-830-6266
    • Website

    Video Tour

    Similar Homes For Sale

    Comparison of 51 Eagle Point Drive, Windsor Junction, NS with Nearby Homes
    Nearby Cities Listings Avg. price
    Middle Sackville 55 $977,395
    Dartmouth 122 $753,377
    Halifax 214 $865,749
    Edmundston 103 $388,549
    Riverview 89 $483,681
    New Glasgow 54 $365,017
    Popular Cities Listings Avg. price
    Moncton 401 $548,717
    Ottawa 2425 $831,678
    Kawartha Lakes 465 $865,405
    Oshawa 356 $821,351
    Fort Erie 319 $784,235
    Markham 562 $1,252,012