2 Indian Road, Upper Nine Mile River

  • Bedrooms: 2
  • Bathrooms: 2
  • Living area: 1072 square feet
  • Type: Residential
  • Added: 2 months ago
  • Updated: 2 months ago
  • Last Checked: 2 months ago
  • Listed by: Exit Real Estate Professionals

Listing description
This House at 2 Indian Road Upper Nine Mile River, NS with the MLS Number 202526521 which includes 2 beds, 2 baths and approximately 1072 sq.ft. of living area listed on the Upper Nine Mile River market by Santina Loppie - Exit Real Estate Professionals at $391,147 2 months ago.

Welcome to this stunning brand-new 16 x 67 Citadel home, perfectly situated on just over an acre of land in Upper Nine Mile Riveroffering the perfect blend of modern living and peaceful surroundings. With 1,072 square feet of beautifully designed space, this home features 2 bedrooms, 1 den, and 2 full bathrooms, ideal for families, professionals, or anyone seeking a relaxing retreat. The open-concept living area is bright and spacious, highlighted by soaring cathedral ceilings that enhance the homes airy, inviting feel. Located less than 20 minutes from all amenities and Highway 102, youll enjoy the tranquility of country living with convenient access to shops, restaurants, and commuting routes. Plus, with the opportunity to customize finishes and details, you can truly make this home your ownmodern comfort and rural charm perfectly combined. (id:1945)
Powered by REALTOR.ca
This listing content provided by REALTOR.ca has been licensed by REALTOR®
members of The Canadian Real Estate Association
Property Details Key information about 2 Indian Road
  • Stories: 1
  • Structure Type: House
  • Exterior Features: Vinyl
  • Foundation Details: Concrete Slab
Interior Features Discover the interior design and amenities
  • Basement: None
  • Flooring: Laminate
  • Living Area: 1072
  • Bedrooms Total: 2
  • Above Grade Finished Area: 1072
  • Above Grade Finished Area Units: square feet
Exterior & Lot Features Learn about the exterior and lot specifics of 2 Indian Road
  • Water Source: Drilled Well
  • Lot Size Units: acres
  • Lot Size Dimensions: 1.39
Location & Community Understand the neighborhood and community
  • Directions: FROM HIGHWAY 102 TO HIGHWAY 14 TO INDIAN ROAD
  • Common Interest: Freehold
  • Community Features: School Bus
Utilities & Systems Review utilities and system installations
  • Sewer: Septic System
Tax & Legal Information Get tax and legal details applicable to 2 Indian Road
  • Parcel Number: 45440583
Additional Features Explore extra features and benefits
  • List A O R: NSAR
  • List A O R Key: 107
  • Bedrooms Above Grade: 2
  • Accessibility Features:
    • 32in min Doorways
    • 5ft min Kitchen Turning Radius
    • 32in min Entry Doorways
    • Entry less than 3 steps
    • Entry threshold less than ½ inch
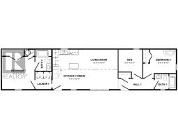
Room Dimensions
Type Level Dimensions
Bath (# pieces 1-6) Main level 6X10
Bedroom Main level 12.3X12.2
Bedroom Main level 9.9X8.10
Den Main level 9X8.3
Eat in kitchen Main level 9.9 X 15
Living room Main level 15X15
Bath (# pieces 1-6) Main level 4X6

Nearby Listings Stat Estimated price and comparable properties near 2 Indian Road

Active listings
1
Min Price
$391,147
Max Price
$391,147
Avg Price
$391,147
Days on Market
65 days
Sold listings
0
Min Sold Price
$N/A
Max Sold Price
$N/A
Avg Sold Price
$N/A
Days until Sold
N/A days

Nearby Places Nearby schools and amenities around 2 Indian Road

Shubenacadie District School (9.4 km)
East Hants

Hants East Rural High School (9.9 km)
East Hants

Atlantic Motorsport Park (7.3 km)
266 Race Track Rd, Mill Village

Whispering Winds Campground Limited (9.2 km)
14201 Hwy 215 RR 4, Shubenacadie

Scothorn Farms Ltd. (9.5 km)
Caldwell Rd, Hardwood Lands

Village Bakery (9.8 km)
2738 Main, Shubenacadie

Price History

October 24, 2025
by Exit Real Estate Professionals
$391,147
2 Indian Road
More Details?
Santina Loppie
  • Santina Loppie
  • Exit Real Estate Professionals
  • 902-483-7723
  • Website

Video Tour

Similar Homes For Sale

Comparison of 2 Indian Road, Upper Nine Mile River, NS with Nearby Homes
Nearby Cities Listings Avg. price
Middle Sackville 55 $977,395
Dartmouth 122 $753,377
Halifax 214 $865,749
Edmundston 103 $388,549
Riverview 89 $483,681
New Glasgow 54 $365,017
Popular Cities Listings Avg. price
Moncton 401 $548,717
Ottawa 2425 $831,659
Kawartha Lakes 465 $865,405
Oshawa 356 $821,351
Markham 562 $1,251,749
Fort Erie 319 $784,235