2546 Marr Creek Court, West Vancouver

  • Bedrooms: 4
  • Bathrooms: 4
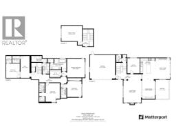
  • Living area: 3996 square feet
  • Type: Residential
  • Added: 2 months ago
  • Updated: 3 weeks ago
  • Last Checked: 18 hours ago
  • Listed by: Initia Real Estate

Listing description
This House at 2546 Marr Creek Court West Vancouver, BC with the MLS Number r3060493 which includes 4 beds, 4 baths and approximately 3996 sq.ft. of living area listed on the West Vancouver market by Bonny Liu - Initia Real Estate at $4,198,000 2 months ago.

Experience luxury coastal living at its finest in this spectacular south-facing home with unobstructed ocean views. From the balcony, you can see Collingwood School-so close that kids can walk on their own-with Mulgrave School just a 15-minute stroll away, perfect for families who value top education. Bright open layout across three levels features 3 en-suite bedrooms, a private office, and a vaulted loft. Custom upgrades include a high-performance stove, wine cooler, extra kitchen cabinet, electric gate, and brand-new sauna. Freshly painted with new carpet, refinished hardwood floors, and new window screens throughout. Nestled in peaceful hills where the ocean meets the sky, this home invites you to savor golden sunsets every day...... Open House: Nov 30 Sun 2-4 PM (id:1945)
Powered by REALTOR.ca
This listing content provided by REALTOR.ca has been licensed by REALTOR®
members of The Canadian Real Estate Association
Property Details Key information about 2546 Marr Creek Court
  • Cooling: Air Conditioned
  • Heating:
    • Radiant heat
    • Forced air
    • Natural gas
  • Year Built: 2006
  • Structure Type: House
Interior Features Discover the interior design and amenities
  • Appliances:
    • All
    • Central Vacuum
  • Living Area: 3996
  • Bedrooms Total: 4
  • Fireplaces Total: 3
Exterior & Lot Features Learn about the exterior and lot specifics of 2546 Marr Creek Court
  • View: View
  • Lot Features: Central location
  • Lot Size Units: square feet
  • Parking Total: 2
  • Parking Features: Garage
  • Lot Size Dimensions: 5208
Location & Community Understand the neighborhood and community
  • Common Interest: Freehold
Tax & Legal Information Get tax and legal details applicable to 2546 Marr Creek Court
  • Tax Year: 2024
  • Parcel Number: 026-479-397
  • Tax Annual Amount: 12896.37
Additional Features Explore extra features and benefits
  • List A O R: Greater Vancouver
  • List A O R Key: 89
  • Geocode Manual Y N: 1
  • Security Features:
    • Security system
    • Smoke Detectors
    • Sprinkler System-Fire
  • Frontage Length Numeric Units: feet

Nearby Listings Stat Estimated price and comparable properties near 2546 Marr Creek Court

Active listings
6
Min Price
$3,498,000
Max Price
$4,380,000
Avg Price
$4,012,333
Days on Market
131 days
Sold listings
2
Min Sold Price
$2,890,000
Max Sold Price
$3,488,000
Avg Sold Price
$3,189,000
Days until Sold
92 days

Nearby Places Nearby schools and amenities around 2546 Marr Creek Court

West Vancouver Secondary School (2.1 km)
1750 Mathers Ave, West Vancouver

Sentinel Secondary (2.4 km)
1250 Chartwell Dr, West Vancouver

Collingwood School (4.8 km)
West Vancouver

West Vancouver Memorial Library (2.5 km)
1950 Marine Dr, West Vancouver

Park Royal Shopping Centre (4.1 km)
2002 Park Royal S, West Vancouver

Capilano River RV Park (4.7 km)
295 Tomahawk Ave, West Vancouver

Capilano Suspension Bridge (5 km)
3735 Capilano Rd, North Vancouver

Price History

October 21, 2025
by Initia Real Estate
$4,198,000
2546 Marr Creek Court
More Details?
Bonny Liu
  • Bonny Liu
  • Initia Real Estate
  • 778-861-8691