32 Creighton Road, Brockton

  • Living area: 8000 square feet
  • Type: Commercial
  • Added: 2 months ago
  • Updated: 1 week ago
  • Last Checked: 6 hours ago
  • Listed by: eXp Realty

Listing description
This Commercial listing at 32 Creighton Road Brockton, ON with the MLS Number x12486880 listed by BRITTANY VANDERSTRAETEN - eXp Realty on the Brockton market 2 months ago at $15.

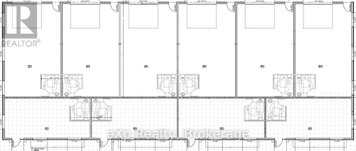
Secure your spot in one of Walkerton's most sought-after industrial corridors with the final 8,000 sq ft unit in this premium build-to-suit development. Fully customizable to meet your specific business needs, this state-of-the-art space is ideal for light industrial use, warehouse operations, tradesperson shops, office or contractor yards. Featuring 14-foot clear ceiling heights, 12-foot shipping doors, and flexible layout options, this unit offers the perfect blend of functionality and modern design. Located in a fast-growing area surrounded by residential development, the Best Western, Balaklava Audio, and future expansion lands, with the regional soccer park just steps away and easy highway access. Built for entrepreneurs, builders, distributors, and operators who need space that adapts to their business. (id:1945)
Powered by REALTOR.ca
This listing content provided by REALTOR.ca has been licensed by REALTOR®
members of The Canadian Real Estate Association
Property Details Key information about 32 Creighton Road
  • Cooling: Fully air conditioned
  • Heating: Other
  • Structure Type: Offices
Interior Features Discover the interior design and amenities
  • Living Area: 8000
Exterior & Lot Features Learn about the exterior and lot specifics of 32 Creighton Road
  • Water Source: Municipal water
  • Lot Size Units: acres
  • Lot Size Dimensions: 4.04
Location & Community Understand the neighborhood and community
  • Directions: Cross Streets: Bruce Road 19. ** Directions: From downtown head east onto Durham Street/Route 4. Turn left onto Ontario Road. Turn right onto Creighton Road.
Tax & Legal Information Get tax and legal details applicable to 32 Creighton Road
  • Tax Year: 2025
  • Tax Annual Amount: 4028.4
  • Zoning Description: BP2 (Business Park 2)
Additional Features Explore extra features and benefits
  • List A O R: OnePoint
  • List A O R Key: 47
  • Price Per Unit: square feet
  • Co List Agent Key2: 2049589
  • Co List Office Key2: 293671
  • Frontage Length Numeric: 367
  • Frontage Length Numeric Units: feet

Nearby Listings Stat Estimated price and comparable properties near 32 Creighton Road

Active listings
0
Min Price
$N/A
Max Price
$N/A
Avg Price
$N/A
Days on Market
N/A days
Sold listings
0
Min Sold Price
$N/A
Max Sold Price
$N/A
Avg Sold Price
$N/A
Days until Sold
N/A days

Nearby Places Nearby schools and amenities around 32 Creighton Road

Price History

October 29, 2025
by eXp Realty
$15
32 Creighton Road
More Details?
BRITTANY VANDERSTRAETEN
  • BRITTANY VANDERSTRAETEN
  • eXp Realty
  • 519-577-5452
  • Website

Similar Commercial Listings For Sale

Comparison of 32 Creighton Road, Brockton, ON with Nearby Commercial Listings
Nearby Cities Listings Avg. price
Wellington North Real Estate 76 $758,843
Minto Real Estate 64 $724,200
Hanover Real Estate 60 $695,605
West Grey Real Estate 92 $918,486
Grey Highlands Real Estate 88 $1,210,578
Springwater Real Estate 142 $1,215,067
Popular Cities Listings Avg. price
Waterloo Real Estate 425 $798,525
Guelph Real Estate 398 $863,183
Kitchener Real Estate 752 $843,707
Brampton Real Estate 1080 $1,146,066
Cambridge Real Estate 401 $1,150,190
Barrie Real Estate 482 $865,899