1 5230 44 Avenue, Spirit River

  • Living area: 22177 square feet
  • Added: 3 weeks ago
  • Updated: 3 weeks ago
  • Last Checked: 18 hours ago
  • Listed by: Sutton Group Grande Prairie Professionals

Listing description
This Other at 1 5230 44 Avenue Spirit River, AB with the MLS Number a2273788 listed by Daniel Cram - Sutton Group Grande Prairie Professionals on the Spirit River market 3 weeks ago at $999,900.

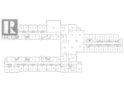
Pleasant View Lodge in Spirit River, Alberta offers multifamily investors a rare chance to acquire a large-scale residential complex with exceptional repositioning potential. Set on 2.32 acres of R4 High Density Residential land, this 42-suite, 22,177 sq. ft. facility has strong underlying infrastructure and has benefited from meaningful capital upgrades, including newer boilers (2015), hot water tanks (2022/2023), double-glazed vinyl windows, and a torch-on roof installed in 2018. The building is currently vacant, providing a clean slate for redevelopment—ideal for conversion to rental apartments, staff housing, seniors housing, or specialized accommodation. Each suite includes a private bathroom, with 26 featuring full tubs or showers. The property also includes supporting amenities such as two staff washrooms, two assisted bathing rooms, a fully equipped commercial kitchen, industrial-grade refrigeration, generous common areas, commercial laundry, office space, a dedicated hair salon, and a 26’ x 40’ maintenance shop. Situated in a quiet, park-adjacent setting with ample parking, the property is just 50 minutes from Grande Prairie and steps from local services, retail, and the Central Peace Health Centre. With strong demand for quality rental housing and workforce accommodation in Northern Alberta, Pleasant View Lodge represents a compelling opportunity to acquire a high-capacity structure with multiple income-generating pathways and significant value-add potential. (id:1945)
Powered by REALTOR.ca
This listing content provided by REALTOR.ca has been licensed by REALTOR®
members of The Canadian Real Estate Association
Property Details Key information about 1 5230 44 Avenue
  • Stories: 1
  • Year Built: 1960
  • Structure Type: Apartment
Interior Features Discover the interior design and amenities
  • Living Area: 22177
  • Above Grade Finished Area: 22177
  • Above Grade Finished Area Units: square feet
Exterior & Lot Features Learn about the exterior and lot specifics of 1 5230 44 Avenue
  • Parking Total: 20
  • Parking Features: Detached Garage
Location & Community Understand the neighborhood and community
  • Common Interest: Freehold
Tax & Legal Information Get tax and legal details applicable to 1 5230 44 Avenue
  • Tax Lot: 20
  • Tax Block: -
  • Parcel Number: 0016080400
  • Zoning Description: R4
Additional Features Explore extra features and benefits
  • List A O R: Grande Prairie
  • List A O R Key: 38
  • Geocode Manual Y N: 1

Nearby Listings Stat Estimated price and comparable properties near 1 5230 44 Avenue

Active listings
9
Min Price
$10,000
Max Price
$999,900
Avg Price
$463,633
Days on Market
358 days
Sold listings
0
Min Sold Price
$N/A
Max Sold Price
$N/A
Avg Sold Price
$N/A
Days until Sold
N/A days

Nearby Places Nearby schools and amenities around 1 5230 44 Avenue

Peace Wapiti Outreach Program (0.7 km)
Spirit River

Northern Lights School (0.7 km)
Spirit River

Savanna School (0.7 km)
Spirit River

Spirit River Regional Academy (1.4 km)
4501 46 St, Spirit River

Rycroft School (8.8 km)
Rycroft

Rycroft Group Home (8.9 km)
Rycroft

Spirit River Po (0.7 km)
5001 47 Ave, Spirit River

1StMICHAELsINN Motel Rycroft (9.6 km)
Alberta 2, Rycroft

Spirit River Home Hardware (0.7 km)
4617 50 St, Spirit River

IGA (0.8 km)
4804 50 St, Spirit River

Spirit River Flooring (0.9 km)
4810 Highway Ave, Spirit River

Spirit River Municipal Airport (1.1 km)
Spirit River

Price History

December 3, 2025
by Sutton Group Grande Prairie Professionals
$999,900
1 5230 44 Avenue
More Details?
Daniel Cram
  • Daniel Cram
  • Sutton Group Grande Prairie Professionals
  • 780-814-9482
  • Website

Similar Other For Sale

Comparison of 1 5230 44 Avenue, Spirit River, AB with Nearby Other
Nearby Cities Listings Avg. price
Rural Grande Prairie No 1 County Of Homes For Sale 183 $902,657
Grande Prairie Homes For Sale 317 $716,895
Dawson Creek Homes For Sale 161 $482,268
Peace River Homes For Sale 87 $468,063
Fort St John Homes For Sale 232 $775,126
Tumbler Ridge Homes For Sale 57 $227,204
Popular Cities Listings Avg. price
Prince George Homes For Sale 471 $721,558
Edmonton Homes For Sale 3871 $607,583
Kamloops Homes For Sale 650 $855,731
Calgary Homes For Sale 4125 $731,459
Vernon Homes For Sale 585 $992,999
Kelowna Homes For Sale 1161 $1,298,531