451 Ivings Drive, Saugeen Shores

  • Bedrooms: 2
  • Bathrooms: 2
  • Type: Townhouse
  • Added: 1 year ago
  • Updated: 2 months ago
  • Last Checked: 8 hours ago
  • Listed by: RE/MAX Land Exchange Ltd.

Listing description
This Townhouse at 451 Ivings Drive Saugeen Shores, ON with the MLS Number x10846828 listed by HAYDEN DUPLANTIS - RE/MAX Land Exchange Ltd. on the Saugeen Shores market 1 year ago at $664,900.

1228 Sqft Brick bungalow freehold townhome at 451 Ivings Drive in Port Elgin with 2 bedrooms and 2 full baths on the main floor. Standard feature include Quartz counter tops in the kitchen, hardwood and ceramic flooring throughout the main floor, hardwood staircase to the basement, sodded yard, covered 10'11 x 10 deck off the dining room and more. The basement can be finished to include a family room with gas fireplace, 3rd bedroom and full bath, asking price would be $694,900. HST is included in the list price provided the Buyer qualifies for the rebate and assigns it to the Seller on closing (id:1945)
Powered by REALTOR.ca
This listing content provided by REALTOR.ca has been licensed by REALTOR®
members of The Canadian Real Estate Association
Property Details Key information about 451 Ivings Drive
  • Cooling:
    • Central air conditioning
    • Air exchanger
  • Heating:
    • Forced air
    • Natural gas
  • Stories: 1
  • Structure Type: Row / Townhouse
  • Exterior Features: Stone
  • Foundation Details: Poured Concrete
  • Architectural Style: Bungalow
Interior Features Discover the interior design and amenities
  • Basement:
    • Unfinished
    • Full
  • Flooring:
    • Tile
    • Hardwood
  • Appliances:
    • Garage door opener
    • Water Heater - Tankless
  • Bedrooms Total: 2
  • Bathrooms Partial: 1
Exterior & Lot Features Learn about the exterior and lot specifics of 451 Ivings Drive
  • Lot Features:
    • Flat site
    • Sump Pump
  • Water Source: Municipal water
  • Parking Total: 3
  • Parking Features:
    • Attached Garage
    • Garage
  • Lot Size Dimensions: 30.6 x 108 FT
Location & Community Understand the neighborhood and community
  • Directions: Ivings Drive North side Between Stickel & Ridge
  • Common Interest: Freehold
Utilities & Systems Review utilities and system installations
  • Sewer: Sanitary sewer
  • Utilities:
    • Sewer
    • Electricity
    • Cable
    • Wireless
Tax & Legal Information Get tax and legal details applicable to 451 Ivings Drive
  • Tax Year: 2024
  • Zoning Description: R3-10
Additional Features Explore extra features and benefits
  • List A O R: OnePoint
  • List A O R Key: 47
  • Security Features: Smoke Detectors
  • Living Area Maximum: 1500
  • Living Area Minimum: 1100
  • Bedrooms Above Grade: 2
  • Frontage Length Numeric: 30.7
  • Frontage Length Numeric Units: feet
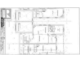
Room Dimensions
Type Level Dimensions
Primary Bedroom Main level 3.78 x 3.43
Dining room Main level 3.77 x 3.35
Bedroom 2 Main level 3.52 x 3.05
Living room Main level 4.25 x 4.17
Laundry room Main level 2.64 x 1.91
Kitchen Main level 3.66 x 4.17

Nearby Listings Stat Estimated price and comparable properties near 451 Ivings Drive

Active listings
13
Min Price
$339,900
Max Price
$1,250,000
Avg Price
$690,108
Days on Market
181 days
Sold listings
0
Min Sold Price
$N/A
Max Sold Price
$N/A
Avg Sold Price
$N/A
Days until Sold
N/A days

Nearby Places Nearby schools and amenities around 451 Ivings Drive

Port Elgin-Saugeen Central School (1 km)
504 Catherine St, Port Elgin

Saugeen District Secondary School (1.7 km)
780 Gustavus St, Port Elgin

McDonald's (0.6 km)
278 Goderich St, Port Elgin

New Orleans Pizza (0.6 km)
218 Goderich St, Port Elgin

Union Burger (0.7 km)
205 Goderich St, Port Elgin

Crabby Joe's Tap & Grill (0.7 km)
203 Goderich St, Port Elgin

Atlantic Restaurant (0.7 km)
140 Goderich St, Saugeen Shores

Lord Elgin Restaurant (0.7 km)
5128 Goderich St, Port Elgin

Pizza Delight (0.8 km)
374 Goderich St, Saugeen Shores

Burger Trail Drive-In (0.8 km)
379 Goderich St, Saugeen Shores

Giant Tiger (0.6 km)
216 Goderich St, Port Elgin

Super 8 Port Elgin (0.7 km)
5129 Ontario 21, Port Elgin

Walmart - Port Elgin (1 km)
5122 Ontario 21, Port Elgin

Well In Hand (1.1 km)
522 Goderich, Port Elgin

Tim Hortons (1.4 km)
618 Gustavus St, Port Elgin

The Wismer House (1.6 km)
705 Goderich St, Saugeen Shores

Price History

October 16, 2024
by RE/MAX Land Exchange Ltd.
$664,900
451 Ivings Drive
More Details?
HAYDEN DUPLANTIS
  • HAYDEN DUPLANTIS
  • RE/MAX Land Exchange Ltd.
  • 226-930-0792

Nearby Cities Listings Avg. price
Kincardine Homes For Sale 82 $888,860
Huronkinloss Homes For Sale 53 $681,943
Hanover Homes For Sale 60 $695,605
Owen Sound Homes For Sale 105 $648,305
South Bruce Peninsula Homes For Sale 102 $883,260
West Grey Homes For Sale 92 $918,486
Popular Cities Listings Avg. price
Waterloo Homes For Sale 425 $798,525
Kitchener Homes For Sale 752 $843,707
Guelph Homes For Sale 398 $863,183
Barrie Homes For Sale 482 $865,899
Cambridge Homes For Sale 401 $1,150,190
Brampton Homes For Sale 1080 $1,146,113